3. The Big Top


Here we consider an equilateral triangle, pointing downwards, whose vertices are distributed in the sextants I,II,III; see Figure 7. Thus, more precisely, O, A, F Î III; B, O¢, C Î II; D, O ¢¢, E Î I, where

O æ
ç
è
n
ö
÷
ø
,     A æ
ç
è
n
r+
ö
÷
ø
,     B æ
ç
è
n
r+k
ö
÷
ø
,
 
O¢ æ
ç
è
n
r+k+
ö
÷
ø
,     C æ
ç
è
n+l
r+k+
ö
÷
ø
,     D æ
ç
è
n+k
r+k+
ö
÷
ø
,
O" =  æ
ç
è
n+k+
r+k+l
ö
÷
ø
,     E æ
ç
è
n+k
r+k
ö
÷
ø
,    F æ
ç
è
n+l 
r+l
ö
÷
ø
.



25Kb

Figure 7: And A×C×E = B×D×F still holds!

The situation here is subtler than in Section 3; for, in testing for invariance under flipping, we cannot simply interchange k and l in some arithmetic formula since, for example, A and B are not in the same sextant, so that the formula for

æ
ç
è
n
r+
ö
÷
ø

is not obtained by replacing k by l in the formula for

æ
ç
è
n
r+k
ö
÷
ø

We note that our parameters are now constrained by the following inequalities:

-k £ n < -l;     -k £ r < -l;     l £ s < k.      (4.1)

Let us examine the parallelogram OADE for the invariance of weight under sliding and flipping. We have

W2(OADE) =  O×D
A
×E


(-1)s(-r-1)!
s!(-n-l)!
. (n-k)!
(r+k+l)!(s-l)!
. (-1)s-l(s-l)!(-n-1)!
(-r-l-l)!
. (r-k)!s!
(n+k)!
W2(OADE) =  (-1)l(-r-1)!(r+k)!
(r+k+l)!(-r-l-1)!
       (4.2)

Thus we may slide in the directionof constant r without changing W2, though, by such sliding, our vertices will, of course, eventually enter a zero sextant.

A similar arithmetical argument applies to the sliding of other parallelograms drawn from Figure 7. However, the real interest - and the real surprise - comes from looking at the parallelogram OADE and interchanging k and l. Thus we consider W2(OBCF). Note that the expression on the right of (4.2) is certainly not symmetric in k and l; but this is irrelevant to our purposes, since, as we have said, the arithmetical formula for, say,

æ
ç
è
n
r+
ö
÷
ø

is not given by replacing k by l in the arithmetical formula for

æ
ç
è
n
r+k
ö
÷
ø

Thus, in fact

W2(OBCF) =  O×C
B
×F
(-1)s(-r-1)!
s!(-n-l)!
. (-1)r+k+l(-s+k-1)!
(r+k+l)!(-n-l-1)!
. (-1)r+k(r+k)!(-n-1)!
(-s-k-1)!
. (-1)ss!(-n-l-1)!
(-r-l-1)!
(-1)l(-r-1)!(r+k)!
(r+k+l)!(-r-l-1)!

so that, comparing with (4.2), we have

W2(OADE) = W2(OBCF)       (4.3) 

We have thus proved the invariance of weight under flipping (there are, of course, two other cases of this present in our equilateral triangle) and infer the Big Star of David Theorem

A×C ×E = B ×D ×F       (4.4)




Remark 1. It is meaningless to inquire if the expansion on the right of (4.2) is symmetric in k and l. For neither (r+l)! nor(-r-k-1)! is defined, in view of (4.1). However, it does make sense to seek an expression symmetric in k and l which is equivalent to the right of (4.2) in the given range (4.1).

Remark 2. The (dotted-line) equilateral triangles of Figures 6 and 7 may be regarded as generating the same generalized Star of David, in accordance with the principle illustrated in Figure 5 and enunciated in the caption to that figure. The precise transformation bringing the two Stars into exact coincidence is given as follows:

Figure 7  Figure 6 
n  ®  n-k 
®  r-k-
®  s-
®  k 
®  k-


3. Appendix: A Historical Note and a Clarification. The first reference to a 'Star of David' Theorem occurs in [1], where Gould refers back to the work of Hoggatt and Hansell [7] and talks of their result as the Star of David property. A second reference to [7] occurs in a subsequent paper of Gould [2], in which he also formulates the conjecture that, for the same configuration as that stated in [7], that is, for the configuration of Figure 4 with k = 2, l = 1, then

gcd (A,C,E) = gcd (B,D,F)       (3.1) 

This he called the Star of David Conjecture.

The conjecture was proved, shortly after its publication, by Hillman and Hoggatt5) [3], and further proofs were given by Straus [8] and Hitotumatu and Sato [6]. However, the authors of [6] not only gave a beautiful proof of Gould's conjecture; they also sowed the seeds of confusion by entitling their paper 'Star of David (I)', thus suggesting that this was the first Star of David Theorem, and by asserting incorrectly that (3.1) was named the Star of David property by Gould (to whom, of course, they correctly attributed the conjecture).

Thus we must attempt to clarify the situation. There are two Star of David theorems relating to the configuration of Figure 4 with k = 2, l = 1. One asserts that (3.1) holds; the second asserts that

A×C ×E = B ×D ×      (3.2)

In light of the terminology adopted in [6], but in defiance of historical priority, we will call (3.1) the First Star of David Theorem and (3.2) the Second Star of David Theorem. The present paper is exclusively concerned with the Second Star of David Theorem, and certain substantial generalizations of it; we have therefore felt free to drop the word 'second'. We feel it important to point out that, while property (3.1) is significantly deeper than property (3.2), it does not even generalize to genuine Stars of David in the Pascal Triangle (the case k = 2l of Figure 4). Property (3.2), on the other hand, generalizes not only to generalized Stars of David (Figure 4 for arbitrary k, l) within the Pascal Triangle, but even to generalized Stars of David within the Pascal Hexagon, extending the domain of the binomial coefficients

æ
ç
è
n
r
ö
÷
ø

to arbitrary integers6 n, r.

The authors would like to thank Professor Alwyn Horadam and Mme Hilde Missinne for providing vital clues to the unravelling of the mystery of the two Star of David theorems.

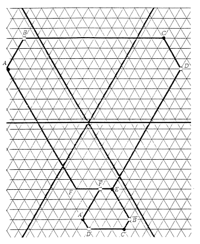
4. Added in Proof. When we gave an invited lecture at Western Michigan University in February, 1996, on the content of this paper, Professor Allen J. Schwenk, a member of the audience, pointed out that one could reinforce our purely algebraic proof of the Star of David property exemplified in Figures 4, 6 by giving it the following geometric interpretation.

The Star of David property involves dividing the 6 vertices of a semiregular hexagon into two classes. Thus, in Figure 6, the vertices A, C, E are in one class, which we call the black class; and the vertices B, D, F are in the white class (see Figure 8(a)). Now the formulae (1.7), (1.8) may, up to sign, be interpreted as asserting the equality of a given non-zero binomial coefficient outside the Pascal Triangle with the corresponding binomial coefficient inside the Pascal Triangle obtained by a 120-degree rotation (clockwise from region II, anticlockwise from region III). Having brought all the vertices of the Star of David into the Pascal Triangle, one replaces the white vertices (or the black vertices) by their images under symmetric reflexion (1.10); and thus assembles a new Star of David inside the Pascal Triangle, for which one already knows that the given property holds. It then only remains to verify that the signs in (1.7), (1.8) cause no problem.

The geometric maneuvers described above are represented in Figures 8(a), (b), and (c).


74Kb

Figure 8a




71Kb

Figure 8b: Primed vertices are images under 120-degree rotations.




74Kb

Figure 8c: Barred vertices are images under the symmetry reflection (1.10).



5 The reference to a Pascal Hexagon in the title of [3] is to a regular hexagon of entries in the Pascal Triangle and not to the Pascal Hexagon, extending the Pascal Triangle, as defined in [4] and the present paper.

6 We plan, in a sequel, to extend the Second Star of David Theorem not only to the 3-dimensional analogue, the Pascal Cuboctahedron, of the Pascal Hexagon, but even to the domain of multinomial coefficients in general. See [
4] also to be published in this journal.


REFERENCES